Destacado Construcción Modular En Venta Otros Diseños
Proyecto Vivienda ERES-188
Madrid, Comunidad de Madrid, España, Madrid
  • desde 1,600€/m2
  • Dirección: Madrid, Comunidad de Madrid, España
  • Ciudad : Madrid
  • País : España

Detalles

  • ID propiedad: RP-21059
  • Precio: desde 1,600€/m2
  • Tamaño de propiedad: 257
  • Dormitorios: 4
  • Baños: 4
  • Garajes: 2
  • Tipo de propiedad: Chalet Aislado, Construcción Modular, VIVIENDAS
  • Gestión: Otros Diseños, Construcción Modular, En Venta

Descripción

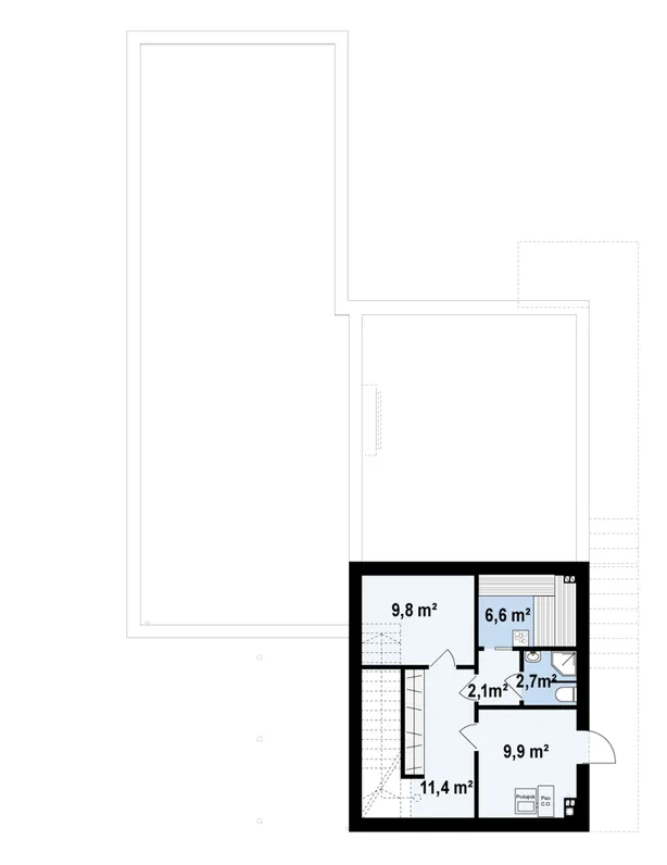
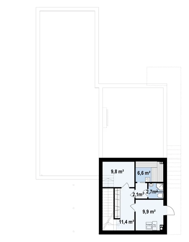
Proyecto Vivienda ERES-188

Utilizable/total: 183,9 / 243,7 m²
Área de construcción: 257,0 m²
Zona de garaje: 49,9 m²
Parcela mínima edificable: 22,36 x 32,86 m

Los Proyectos de Viviendas y sus diseños, al igual que los Proyectos Realizados,  que sirvan como base inspiradora, para poder lograr finalmente el diseño definitivo.

Eco Real Estate: Viviendas de Alta Gama en Tiempo Récord

En alianza con ModularProjects, pioneros en construcción industrializada con estructura de madera desde 2009, Eco Real Estate lidera una nueva era en arquitectura modular: viviendas sostenibles, eficientes y con acabados premium, entregadas en solo 120 días.

  • Más de 300 viviendas entregadas en España, Francia, Inglaterra y Portugal
  • Hasta un 50% de ahorro en costes y plazos frente a la construcción tradicional
  • Eficiencia energética y aislamiento superior gracias a estructuras ecológicas de madera
  • Diseño arquitectónico a medida, con acabados de alta gama
  • Equipo técnico especializado en proyectos residenciales y comerciales
  • Gestión integral de licencias y obra, con garantía estructural de 10 años
  • Operamos en toda España y países limítrofes
  • Seguro a todo riesgo incluido durante la obra

 


¿Estás listo para construir de forma más rápida, eficiente y sostenible?

Solicita tu presupuesto hoy… y déjate sorprender.

Información de contacto

más publicaciones

Pregunte por la Propiedad

Clasificación Energética

  • Clasificación Energética: A+
  • | Certificado de Eficiencia Energética A+
    A+
  • A
  • B
  • C
  • D
  • E
  • F
  • G
  • H

Publicaciones similares

Comparar listados

Comparar
Jorge Benítez
  • Jorge Benítez